Kindergarten und Tagesstruktur Stock

KÜTTIGEN, AG
2023 bis 2025, NEUBAU

Verfahren: Gesamtleistungswettbewerb

Bauherrschaft: Gemeinde Küttigen

Rangierung/Preis: 1.Preis

Programm: 5-fach Kindergarten mit Tagesstruktur

Mitarbeit Wettbewerb: Stefan Herzog, Sebastian Ritter, Pascal Ryser, Simon Heiniger

Gesamtleitung: Küng Holzbau AG

Landschaft Wettbewerb: Gartenwerker

Planung: 2023

Ausführung: 2024 - 2025

Bauweise: Vollholzbau

Fassade: Holzfassade, entweder roh oder rot gebürstet

Visualisierung: Herzog Ritter Architekten

Fotos: Simon Fässler

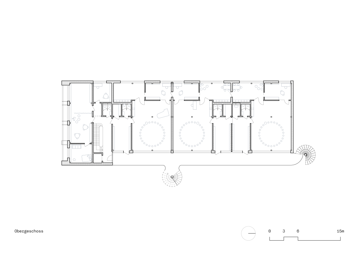
Das lang gestreckte Kindergartenhaus findet nahe der westlichen Grenze des Projektperimeters seinen optimalen Standort. Das geplante Haus zoniert das Areal in drei klare Bereiche:

Im Westen des Kindergartens kommt die neue Durchwegung – das Stockgässlein – zu liegen. An diesem, dem Fussgängerverkehr vorbehaltenen Weg, liegt der Hauptzugang zum Kindergarten. Das Stockgässlein dient des Weiteren auch als Verbindungsweg und verbindet das Wohnquartier mit dem Schulareal Stock.

Im Süden des Hauses bildet ein markanter Kopfbau den Abschluss zum Schulareal. Einbeschrieben in diesen Kopfbau liegt die zwischen der Schule und dem Kindergarten geteilte Nutzung – die Tagesstruktur. Zugänglich ist die Tagesstruktur direkt vom Schulareal über einen von der Schule und der Tagesstruktur nutzbaren Platzbereich, sowie einen direkten internen Zugang vom Kindergarten her.

Zwischen der Ostfassade und dem bestehenden Nussbaumhaus spannen sich die unterschiedlichen, der Nutzung durch die Kindergärten vorbehaltenen, Aussenräume auf. Das Nach-Westen-rücken des Kindergartens ermöglicht, dass das Nussbaumhaus erhalten und weiter- bzw. umgenutzt werden kann.

MATERIALISIERUNG

Ein Haus ohne Metall, ohne Leim und ohne chemische Baustoffe – nur das reine Holz, wie die Natur es uns gibt. Für gesundes, behagliches und lebendiges Entdecken mit höchster Aufenthaltsqualität.

Nebst dem innovativen Vollholzsystem wird auch ein Holzunterlagsbodensystem aus regionalem Buchenholz verwendet, welches als Alternative zu konventionellem Zementboden verlegt wird. Somit wird auch beim Bodenaufbau vollumfänglich auf natürliche Materialien gesetzt. Türen, Schränke und diverse andere Möbel werden leimfrei hergestellt. Statt Leim werden Holzdübel oder spezielle Holzverbindungen verwendet, welche die Holzbretter zusammenhalten.

INNERE LOGIK

Über die Laube werden die einzelnen Kindergarteneinheiten erschlossen. Von den Garderoben gelangt man in die Haupträume der Kindergärten, sowie in die geteilten WC-Anlagen.

An der Westfassade sind die Gruppen-, Material- und Arbeitsräume als Rücken angeordnet. Die Kindergarteneinheiten erhalten bei Bedarf eine interne Verbindung mittels einer Enfilade; diese ermöglicht die Bewegungen entlang der Westfassade durch die Räume und fördert den Austausch zwischen den Lehrpersonen. Von den Haupträumen der Kindergärten kann jeweils auch direkt die Laube betreten und erlebt werden.

Im Süden des Gebäudes sind die Räume des Kinderhorts über zwei Geschosse organisiert. Im Erdgeschoss befindet sich die Garderobe und  der Aufenthaltsraum. Über eine innenliegende Treppe werden die Spielräume, sowie der Ruheraum im Obergeschoss direkt erschlossen.

FASSADE

Die kompakte Holzfassade aus Fichtenholz wird mit spezifischen Öffnungen modelliert. Somit werden die Ein- und Ausgänge zur Laube hin, sowie spezifische Ausblicke auf Kinderhöhe mit Sitznischen und Ablageflächen auf Brüstungshöhe ermöglicht.

Die Fichtenholzverkleidung ist an den bewitterten Stellen mit einem Anstrich aus roter Schlammfarbe behandelt. Bei den witterungsgeschützten Fassaden der Laube und des Durchgangs wird das Fichtenholz unbehandelt belassen. Dadurch ergibt sich eine umschliessende Geste aus rotem Fichtenholz mit weichem, naturbelassenen Innern, welche auf eine verspielte Art die Sinne der Kinder anspricht.

Die Laubenschicht wird mit einem Geländer abgeschlossen, welches zwei Handläufe anbietet. Ein metallener, feiner Handlauf auf Erwachsenenhöhe, sowie ein hölzerner, warmer Handlauf auf Kinderhöhe. Im Obergeschoss wird der untere Bereich des Geländers zur Absturzsicherung mit einem Netz bespannt.

Als vorderer Abschluss bieten Knickarmmarkisen zusätzlichen Sonnenschutz für die Morgensonne und erweitern den überdachten Raum der Laube.

Die Westfassade ist durch eine rhythmische Anordnung der Fenster geprägt. Für die Lehrer- und Gruppenräume wird eine Fensterkombination aus einem öffenbaren Flügel, einem feststehenden Quadratfenster und dem oberen, motorisierten Lüftungskippfenster im Wechsel zueinander angeordnet. Der aussenliegende Sonnenschutz ist hier über Ausstellmarkisen gelöst.

Auf der Südfassade öffnen sich die Räume des Tageshorts zur Schulanlage hin mit Faltschiebefenstern. Diese ermöglichen eine ebenerdige, schwellenlose Benutzung des Innen- mit dem Aussenbereich, sowie eine grosszügige Öffnung des Aufenthaltsraums. Im OG sind drei spezifische Lochfenster geplant, um dem Kopfteil des Gebäudes einen der Nutzung angemessenen Ausdruck zu verleihen.