Neubau Schule Safenwil

SAFENWIL, AG
2025, NEUBAU

Verfahren: offenes Verfahren

Bauherrschaft: Gemeinde Safenwil

Programm: Schulbau mit Tagesstruktur

Mitarbeit Wettbewerb: Stefan Herzog, Sebastian Ritter, Timm Brinsa, Lara Graf

Landschaftsarchitekt: Schneider Schmid

Gebäudetechnik: SGT Gebäudetechnik AG

Planung: 2025

Bauweise: Holzbau & Massivbauweise

Fassade: Holzfassade

Visualisierung: Robin Archive

Das neue Schulgebäude ergänzt die bestehende Reihung der Schulbauten und schafft eine klare Abfolge zugeordneter Außenräume, die Orientierung und Identifikation fördern. Durch die Platzierung am hangbegleitenden Weg wird die Adressbildung des Schulareals gestärkt. Ein außenliegender Treppenturm mit einen Lift im Kern vermittelt zwischen den Geländeniveaus und ermöglicht einen barrierefreien Zugang, der Werkhof, Elterntaxi-Zonen und Parkplätze miteinander verbindet. Die Wegführung führt vom Werkhof entlang der Hangkante zu einem neu gestalteten Platz, der Aula und Bibliothek zugeordnet ist und als Treffpunkt dient. Eine großzügige Freitreppe verbindet diesen Platz mit dem Strassenniveau und dem Pausenplatz.

TYPOLOGIE

Für das neue Schulhaus wird eine Laubengangtypologie vorgeschlagen, die sich sowohl funktional als auch architektonisch prägend in das bestehende Schulareal einfügt. Der gewählte Typus erlaubt eine klare, effiziente Erschliessung der verschiedenen Nutzungsbereiche und bietet gleichzeitig eine Reihe signifikanter Mehrwerte für das Gebäude und seine Umgebung.

ORGANISATION

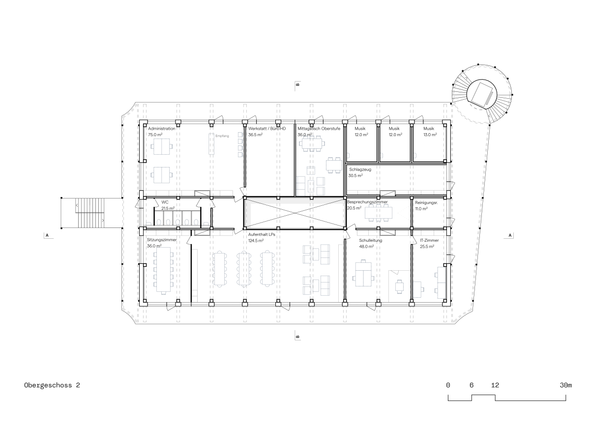
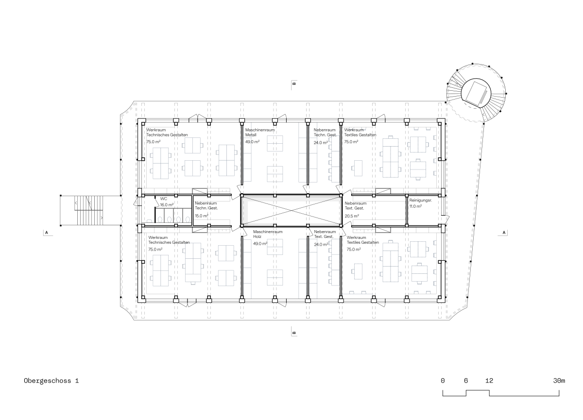
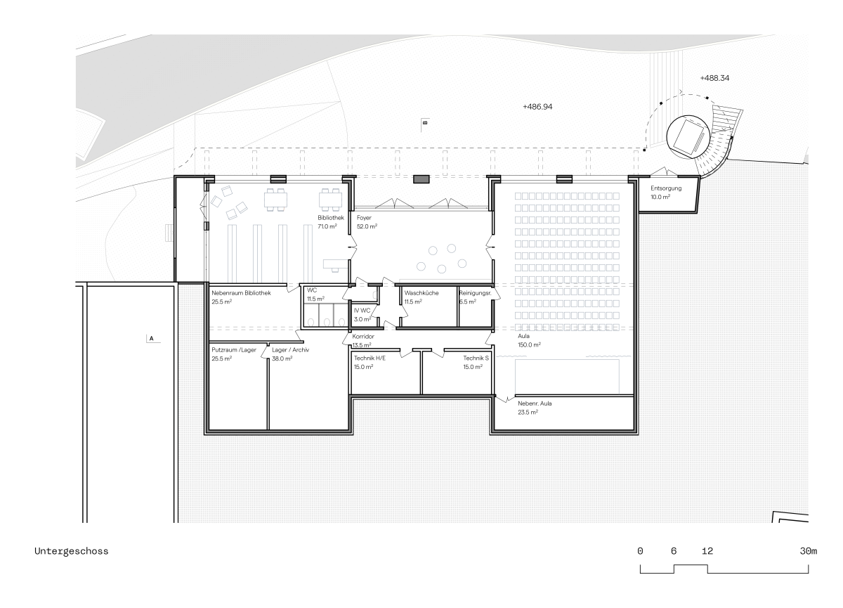
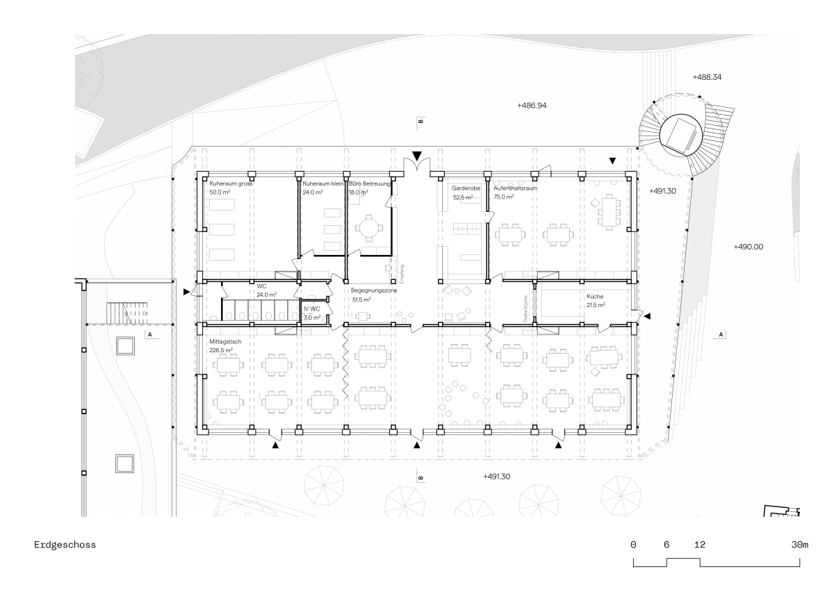
Im erdberührten Sockelgeschoss befinden sich die öffentlichen Nutzungen wie die Aula und die Bibliothek. Ein Geschoss darüber ist die Tagesstruktur untergebracht. Sie ist direkt vom Pausenplatz aus erreichbar und verfügt über einen vorgelagerten Aussenraum, der eine eigenständige, altersgerechte Nutzung ermöglicht. Über der Begegnungszone der Tagesstruktur eröffnet sich der zentral gelegene Lichthof. Das darüberliegende Geschoss ist den Werkräumen vorbehalten. Das oberste Geschoss teilt sich der Lehrer- und Verwaltungsbereich mit den Musikräumen. Ein zentraler Lichthof durchdringt alle Geschosse und dient sowohl der natürlichen Belichtung als auch der vertikalen räumlichen Sicht-Verbindung.

TRAGWERK

Die Typologie der gewählten Tragkonstruktion verbindet traditionellen Holzbau mit einer modernen, technisch anspruchsvollen Umsetzung, unter Verwendung nachhaltiger Materialien und einer effizienten Bauweise. Ein hoher Vorfertigungsgrad sowie einfache, präzise Verbindungen gewährleisten eine hohe Ausführungsqualität. Im Innenbereich erfolgt der vertikale Lastabtrag über konsequent übereinanderliegende Stützen. Die im Werk vorgefertigten Brettstapelholzdecken sind so optimiert, dass sie alle statischen, bauphysikalischen und brandschutztechnischen Anforderungen erfüllen. Das Untergeschoss wird in Massivbauweise ausgeführt. Der Lastabtrag des darüberliegenden Stützenrasters erfolgt überwiegend direkt über die zahlreichen Aussen- und Innenwände.

TECHNIK

Der Entwurf verfolgt den Grundsatz, die haustechnischen Anlagen auf ein sinnvolles Minimum zu reduzieren und gleichzeitig ein hohes Mass an Raumkomfort sicherzustellen. Dabei steht eine klimatisch robuste Architektur im Vordergrund, die durch passive Strategien wie natürliche Belüftung, Nachtauskühlung und thermische Trägheit der Baumaterialien unterstützt wird.