Erweiterung Schulstandort Brühl, Dornach

DORNACH, SO
2025, ERWEITERUNGSBAU, UMBAU

Verfahren: offenes Verfahren

Bauherrschaft: Gemeinde Dornach

Rangieren/Preis: engere Auswahl

Programm: Erweiterung Primarschule, Neubau Tagesstruktur

Mitarbeit: Stefan Herzog, Sebastian Ritter, Timm Brinsa

Landschaftsarchitekt: Lorenz Eugster Landschaftsarchitektur und Städtebau GmbH

Planung: 2025

Bauweise: Holzbau & Massivbauweise

Visualisierung: Herzog Ritter Architekten

Die Erweiterung und Transformation der Schulanlage in Dornach basiert auf einer klaren Gliederung der Nutzungen und einem respektvollen Umgang mit den bestehenden Bauten. Der Projektvorschlag verbindet Alt und Neu zu einem funktionalen, räumlich kohärenten Ensemble, das die Schulanlage langfristig stärkt und Entwicklungsspielräume offenhält. Die Kindergärten, die Tagesstruktur und der Bewegungsraum werden auf der freien Wiese im Osten der Schulanlage als zusammenhängender Neubau gruppiert. Die Platzierung in unmittelbarer Nähe zu den bestehenden Kindergärten folgt der engen funktionalen Verknüpfung untereinander und schafft eine klare Adresse gegenüber den bestehenden Bauten.

ORTSBAU

Die Schulanlage Brühl in Dornach liegt an einer wichtigen topografischen und städtebaulichen Schnittstelle zwischen Jurahang, historischem Ortskern und dem neuen Quartier Wydeneck. Das Projekt stärkt die bestehenden Qualitäten des Areals durch gezielte Eingriffe, bewahrt landschaftliche Bezüge und schafft klare Räume für Bewegung, Spiel und Lernen. Eine Neuordnung des Verkehrs trennt motorisierte und langsame Mobilität und verwandelt den Gempenring in den verkehrsberuhigten „Brühlplatz“, der als verbindender Dorf- und Schulplatz für Schule und Quartier dient.

 

AUSSENÄUME

Der Schulhof wird teilweise entsiegelt und als grosszügiger Aufenthalts- und Bewegungsraum mit Kiesfläche und Grossbaum neu gestaltet. Auch die Parkterrasse wird durch Kiesbeläge, Findlinge und neue Bäume in einen naturnahen Übergang zum Schulpark transformiert, der über den „Saumweg“ Spiel- und Lernorte verbindet. Ergänzt wird der Aussenraum durch differenzierte Spiel- und Lernbereiche, einen Lerngarten am Waldrand sowie vielfältige Aufenthalts- und Spielflächen für Tagesstruktur und Kindergarten, teilweise auch auf dem Dach mit Ausblick ins Birstal.

 

NUTZUNGSKONZEPT

Der heutige Takt D des Schulgeländes erweist sich in seiner Setzung und Struktur als wenig integrierbar in die Gesamtanlage. Am selben Standort wird deshalb ein kompakter Neubau erstellt, der sich eng an die bestehenden Schulhäuser anbindet. Die Sanierung der anderen Trakte des Schulareals erfolgt sorgfältig unter Erhalt der wesentlichen Gebäudestruktur. Ziel ist es, die organisatorischen, strukturellen und räumlichen Qualitäten zu bewahren und gleichzeitig eine zeitgemässe Nutzung zu ermöglichen.

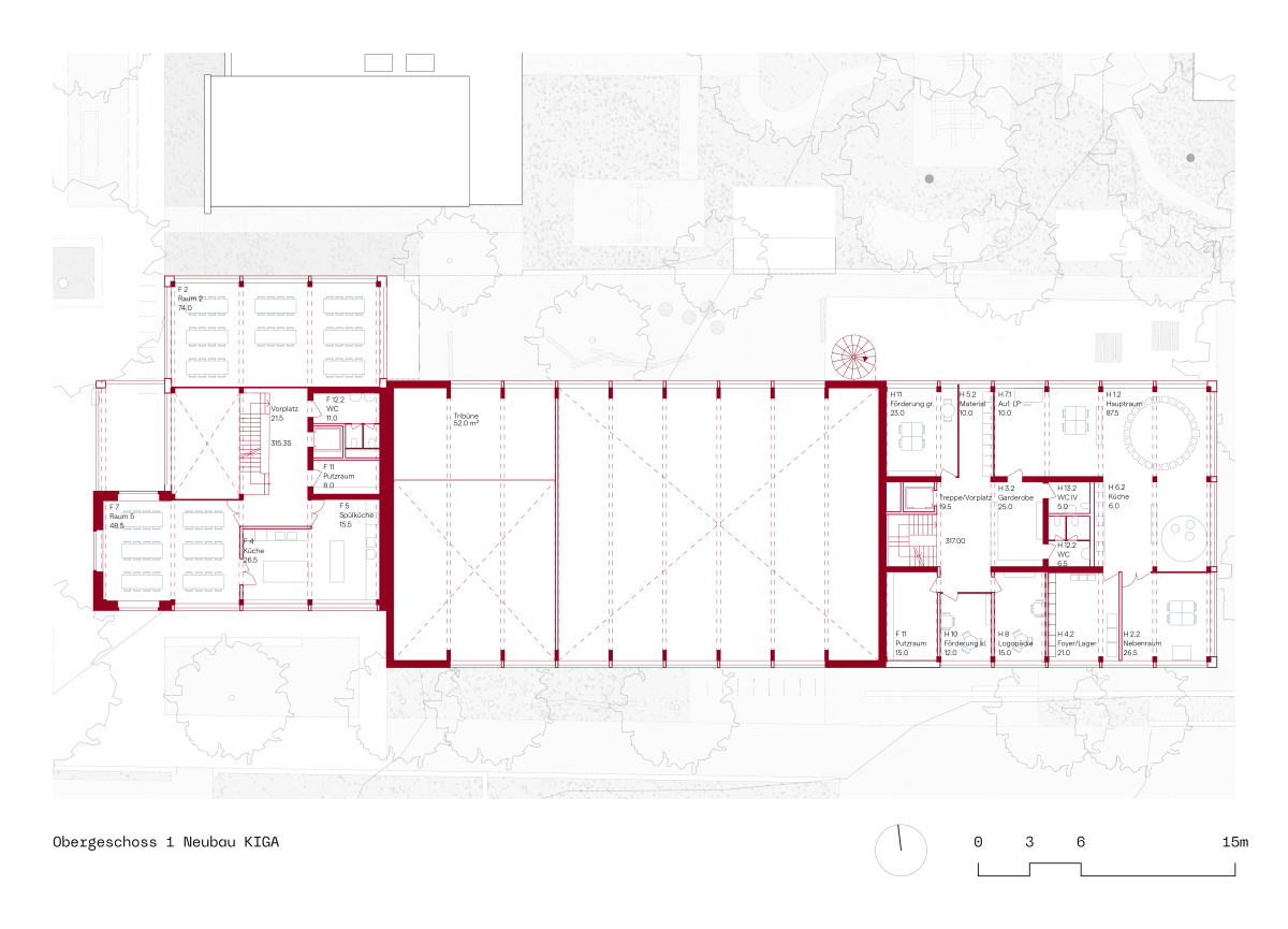
Im Osten entsteht ein Neubauensemble, das sich in seiner Massstäblichkeit an den bestehenden Doppelkindergärten am Gempenring orientiert. Die Tagesstruktur bildet als Kopfbau den Auftakt gegenüber der Schulanlage und wird durch eine grosszügige, dreigeschossige Erschliessungshalle organisiert, deren Zentrum das mittlere Geschoss mit den Räumen für den Mittagstisch bildet. Der Bewegungsraum wird als verbindendes Scharnier zwischen Tagesstruktur und Doppelkindergärten angeordnet und durch einen volumetrischen Versatz mit der Schulanlage verknüpft. Der Doppelkindergärten markiert den östlichen Abschluss des Ensembles und zugleich schliesst er den grosszügigen, mit den weiteren Kindergärten geteilten Aussenbereich nach Süden hin ab.